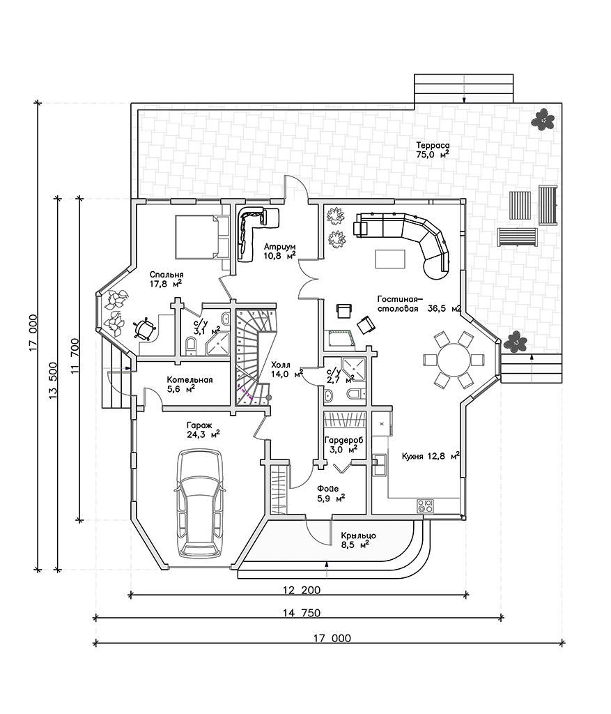
Этим фантастически красивым домом вы будете очарованы! Три просторные спальни и ванна наверху наполнены светом и пространством, и делает их прекрасными отдельными комнатами для жителей. Первый этаж - центральная часть в доме, где расположена большая гостиная - столовая комната с практичной кухонной зоной будет идеальным местом для отдыха и проживания. Четырехскатная вальмовая кровля придает дому собственный характерный внешний вид.